2009 Hospitalhof
Stuttgart
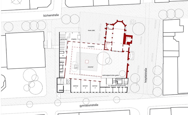
Durch die Platzierung des neuen Baukörpers wird die Hospitalkirche freigestellt; dadurch entsteht ein stadträumlicher Bereich, der als eigenständiger Platz den Zugang zum Bildungszentrum darstellt.
Der Entwurf baut auf dem historischen Grundriss des Kreuzgangs auf, übernimmt die Form und überlagert sie mit einem zum Verwaltungsbau rechtwinkling gestellten neuen Bauköper.
Der ehem. Kreuzgang wird teilweise zum neuen "Innenhof" eingefaßt von neuen und alten Kanten. Er dient als verbindendes Element zwischen dem bestehenden Verwaltungsbau und dem neuem Bildungszentrum Hospitalhof.
Um das Quartier Hospitalhof erlebbar zu machen wird die Gebäudestellung im Platzbelag aufgenommen.
Durch die Platzierung des neuen Baukörpers wird die Hospitalkirche freigestellt; dadurch ensteht ein stadträumlicher Bereich, der als eigenständiger Platz den Zugang zum Bildungszentrum darstellt.
Der Entwurf baut auf dem historischen Grundriss des Kreuzgangs auf, übernimmt die Form und überlagert sie mit einem zum Verwaltungsbau rechtwinkling gestellten neuen Bauköper.
Der ehem. Kreuzgang wird teilweise zum neuen "Innenhof" eingefaßt von neuen und alten Kanten. Er dient als verbindendes Element zwischen dem bestehenden Verwaltungsbau und dem neuem Bildungszentrum Hospitalhof.
Um das Quartier Hospitalhof erlebbar zu machen wird die Gebäudestellung im Platzbelag aufgenommen.
Durch die Platzierung des neuen Baukörpers wird die Hospitalkirche freigestellt; dadurch ensteht ein stadträumlicher Bereich, der als eigenständiger Platz den Zugang zum Bildungszentrum darstellt.
Der Entwurf baut auf dem historischen Grundriss des Kreuzgangs auf, übernimmt die Form und überlagert sie mit einem zum Verwaltungsbau rechtwinkling gestellten neuen Bauköper.
Der ehem. Kreuzgang wird teilweise zum neuen "Innenhof" eingefaßt von neuen und alten Kanten. Er dient als verbindendes Element zwischen dem bestehenden Verwaltungsbau und dem neuem Bildungszentrum Hospitalhof.
Um das Quartier Hospitalhof erlebbar zu machen wird die Gebäudestellung im Platzbelag aufgenommen.
Durch die Platzierung des neuen Baukörpers wird die Hospitalkirche freigestellt; dadurch ensteht ein stadträumlicher Bereich, der als eigenständiger Platz den Zugang zum Bildungszentrum darstellt.
Der Entwurf baut auf dem historischen Grundriss des Kreuzgangs auf, übernimmt die Form und überlagert sie mit einem zum Verwaltungsbau rechtwinkling gestellten neuen Bauköper.
Der ehem. Kreuzgang wird teilweise zum neuen "Innenhof" eingefaßt von neuen und alten Kanten. Er dient als verbindendes Element zwischen dem bestehenden Verwaltungsbau und dem neuem Bildungszentrum Hospitalhof.
Um das Quartier Hospitalhof erlebbar zu machen wird die Gebäudestellung im Platzbelag aufgenommen.
| Wettbewerbsart: | geladener Realisierungswettbewerb |
| Auslober: | Evangelische Landeskirche in Württemberg |
| Platzierung: | 1. Stufe |
| Fachplaner: |